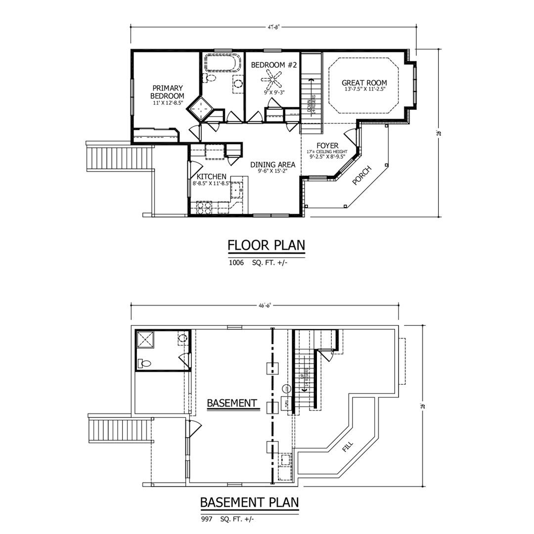
2 Bed
1 Bath
1006 sq ft
Our Floorplan
Our Amenities
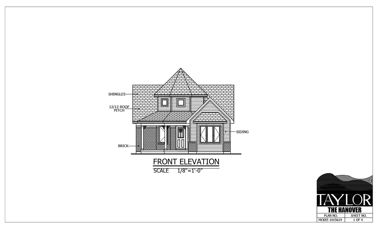
The Hanover is a charming, thoughtfully crafted home, ideally suited for narrow lots. The welcoming front porch ushers you into a grand turret leading into the spacious living room, kitchen, and dining area. Also within are 2 bedrooms, accompanied by a single bath upstairs, along with a practically placed laundry area and a second bathroom nestled in the basement.
Features:
- Kitchen with Breakfast Bar
- Generous Great Room
- Ideal for Narrow Lots
- Grand Turret Entry
- Front porch
*Some features may be optional
Our Videos
Other Models

Model A - #96A - 965 Sq. Ft.
The Hanover is a compact, well laid-out home, ideal for building on narrow lots. It features 2 bedrooms, 1 bath, living room and a separate dining area.

Model B - #96B - 965 Sq. Ft.
A vaulted ceiling is added in the living room/kitchen.

Model C - #96C - 965 Sq. Ft.
Two sidelights are added. Hip roof.

















