Facebook
Twitter
LinkedIn
Youtube
Pinterest
Instagram
Where We Build
Kentucky
Kentucky Counties We Build In
Louisville Home Builders
Lexington Home Builders
Georgetown Home Builders
Central Kentucky Home Builders
Northern Kentucky Home Builders
Elizabethtown Home Builders
Indiana
Indiana Counties We Build In
Indianapolis Home Builders
South Indianapolis Home Builders
Central Indiana Home Builder
Eastern Indiana Home Builders
Southern Indiana Home Builder
Western Indiana Home Builder
Ohio
Ohio Counties We Build In
Cincinnati Home Builders
Southern Ohio Home Builders
Model Locations and Hours
Our Floorplans
Floorplans
Customized Designs
Duplex Home Designs
Multi-Generational Living
Exterior Color Selections
New Home Standard Features
Pricing
Mortgage Calculator
Build Features
See Our Flexibility
Optional Packages
Why Taylor
Current Promotion
About Taylor Homes
Ethics Awards
Energy Smart
Customer Testimonials
Informative Videos
Informative Audios
Build On Your Lot
Community Involvement
Referral Program
Careers
Taylor Team Opportunities
Qualified & Quality
Subcontractors Needed
Virtual
Tours/Meetings
Info Packet
Building Steps
Getting Started
Easy Financing
The Building Process
Existing Homeowners
FAQs
Gallery
Photo Tour
Video Tour
Blog
Request More Information
Get Your FREE Pricing!
Select Page
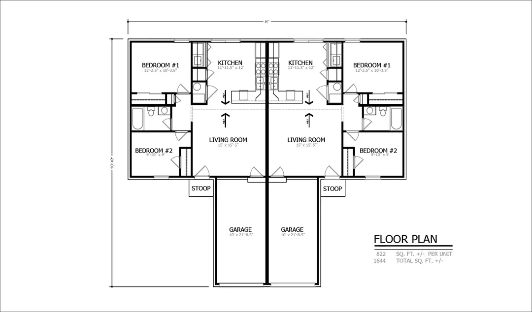
Duplex 822
4 Bed
2 Bath
1644 sq ft
Our Floorplan
Our Amenities
*Some features may be optional
Try Our New
Exterior Color Tool
Try it Now
Standard Features:
Name Brands You Can Trust
Over the Course of 65+ Years
Thousands of Quality Custom Homes Built
About Us
Ethics Award
Build on your Lot
Testimonials
đź’¬
Taylor Homes Assistant
—
Thinking…
Send
Get more information
Select Build State
Submit
End chat
Where We Build
Kentucky
Kentucky Counties We Build In
Louisville Home Builders
Lexington Home Builders
Georgetown Home Builders
Central Kentucky Home Builders
Northern Kentucky Home Builders
Elizabethtown Home Builders
Back
Indiana
Indiana Counties We Build In
Indianapolis Home Builders
South Indianapolis Home Builders
Central Indiana Home Builder
Eastern Indiana Home Builders
Southern Indiana Home Builder
Western Indiana Home Builder
Back
Ohio
Ohio Counties We Build In
Cincinnati Home Builders
Southern Ohio Home Builders
Back
Model Locations and Hours
Back
Our Floorplans
Floorplans
Customized Designs
Duplex Home Designs
Multi-Generational Living
Exterior Color Selections
New Home Standard Features
Pricing
Mortgage Calculator
Build Features
See Our Flexibility
Optional Packages
Back
Why Taylor
Current Promotion
About Taylor Homes
Ethics Awards
Energy Smart
Customer Testimonials
Informative Videos
Informative Audios
Build On Your Lot
Community Involvement
Referral Program
Careers
Taylor Team Opportunities
Qualified & Quality
Subcontractors Needed
Back
Virtual
Tours/Meetings
Info Packet
Back
Building Steps
Getting Started
Easy Financing
The Building Process
Existing Homeowners
FAQs
Back
Gallery
Photo Tour
Video Tour
Blog
Back
Request More Information
Get Your FREE Pricing!
Current Promo
× Close Panel