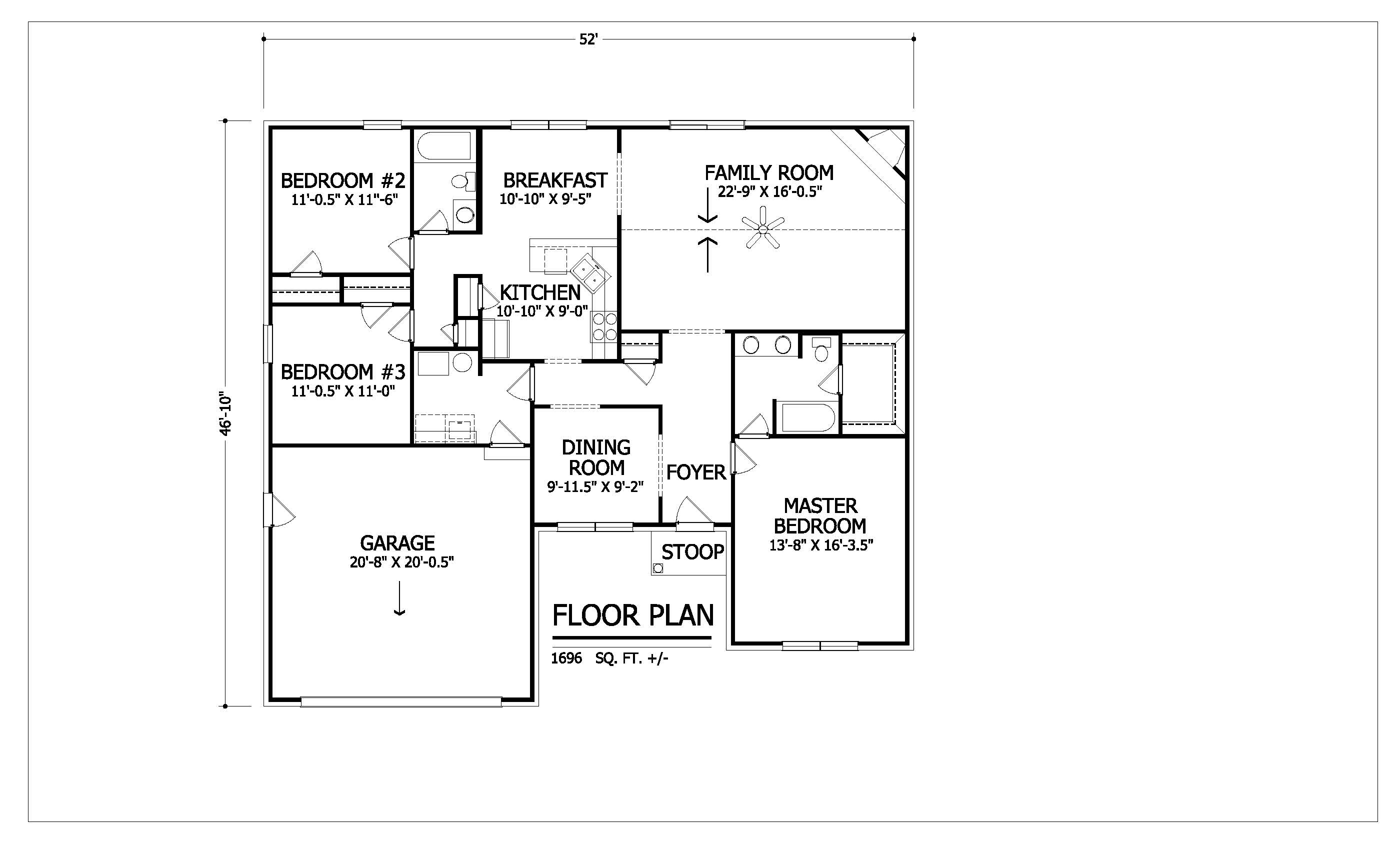
3 Bed
2 Bath
1696 sq ft
Our Floorplan
Our Amenities
One of our most popular homes, the Grandshire features 3 bedrooms and 2 baths including a master suite with a large walk-in closet. The cozy family room has vaulted ceilings and the kitchen features a roomy breakfast area and pantry.
- Family room vaulted ceiling with fan
- Master bedroom suite with large walk-in closet
- “His and her” sinks in master bath
- Dining room
- Breakfast area and pantry
- Utility and laundry area
- Two-car garage
*Some features may be optional
Other Models

Contemporary - #169 - 1696 Sq. Ft.
- 9 foot walls
- decorative brick around windows
- square leaded glass door
- 4 quoin corners
- 8 transom windows
- 2 additional windows in garage
- side load garage
- partially bricked column
- 3 gable pediments
- shake style siding
- brick front gable
- eyebrow front gables
- 7/12 roof pitch

Model A - #169A - 1696 Sq. Ft.
This popular ranch features 3 bedrooms and 2 baths. Also includes a large master suite, vaulted family room and roomy breakfast area.

Model B - #169B - 1696 Sq. Ft.
Adds two front windows and 3.25″ crown molding replaces the vaulted ceiling. The roof has been upgraded to a 7/12 pitch.

Model C - #169C - 1696 Sq. Ft.
A 15′ x 5′ front porch replaces the 6′ x 3’6″ porch in Option A. Two additional windows and brick front gables have also been added.










